Office Remodel

Year 2022

Location Mountain View, CA

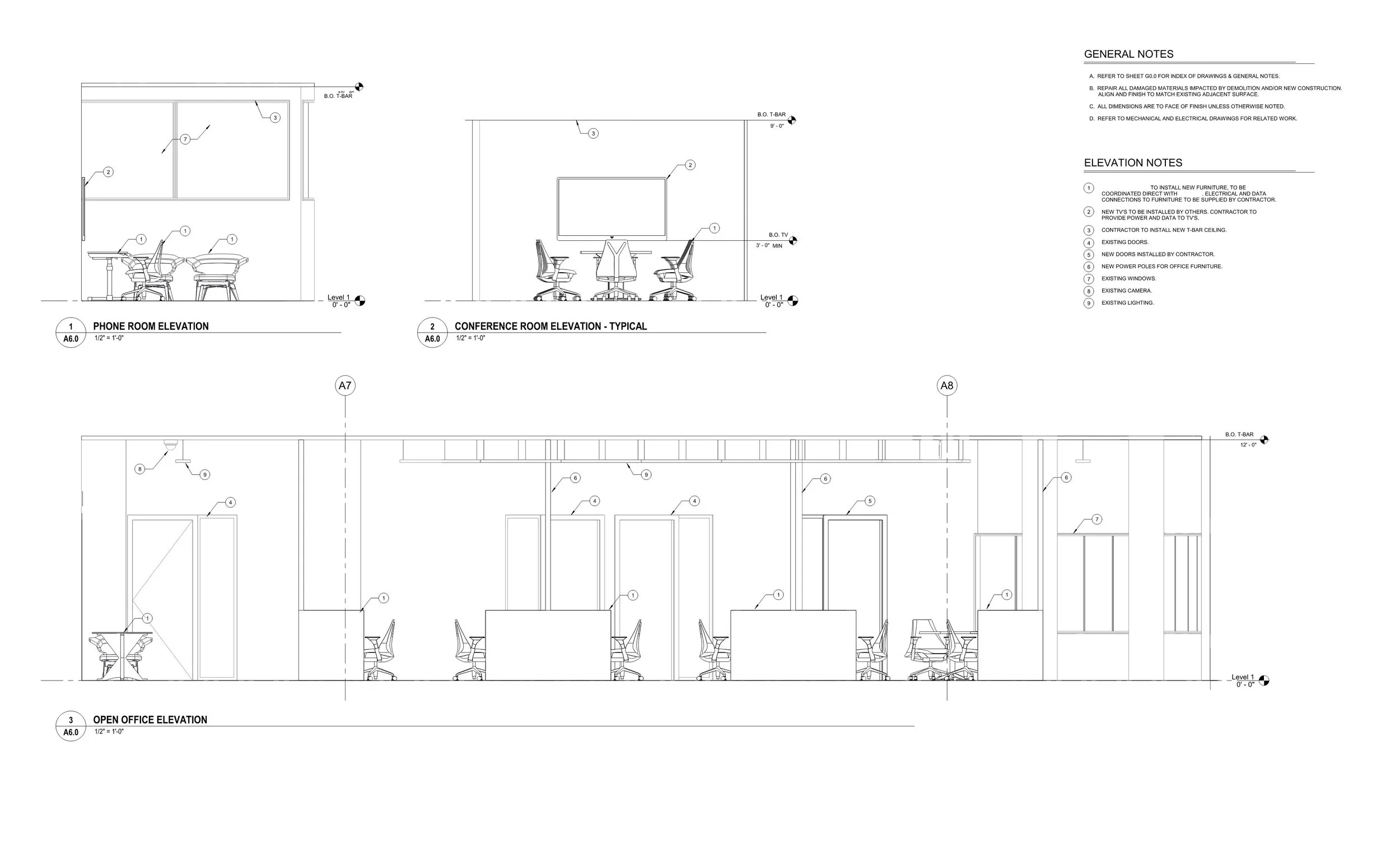
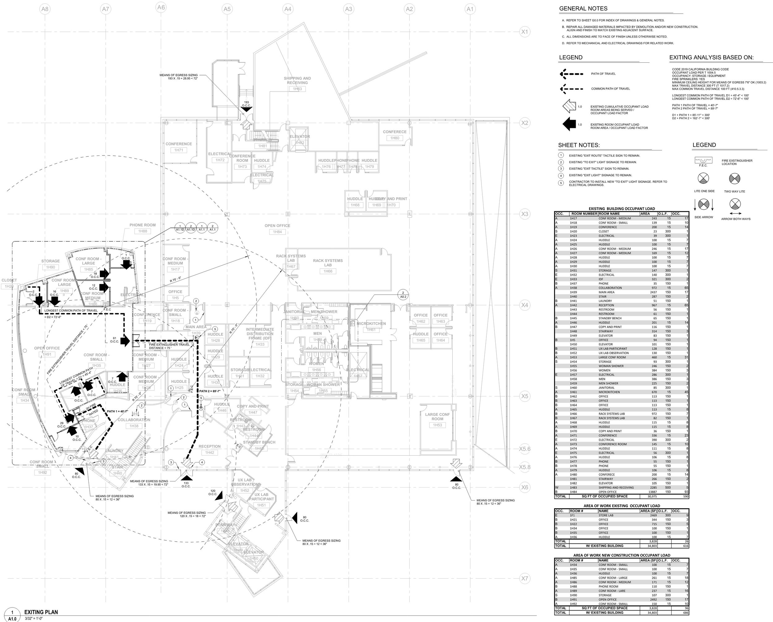
The client requested the removal of a large open space that served as a server room, and repurpose the area into an open office with various office rooms, phone rooms, and conference rooms.

I was the sole Designer and Project Manager for this project. Some of my tasks included collaboration with the client to use their provided schematic designs to draw design development drawings and a permit set, coordinated and managed design meetings, and collaborated with mechanical, electrical, fire alarm, and fire sprinkler contractors. I then permitted these drawings and completed the construction administration for this project resulting in a completed closeout package for the client. All drawings shown are completed by me.