Mico-Kitchen

Year 2025

Location Mountain View, CA, US

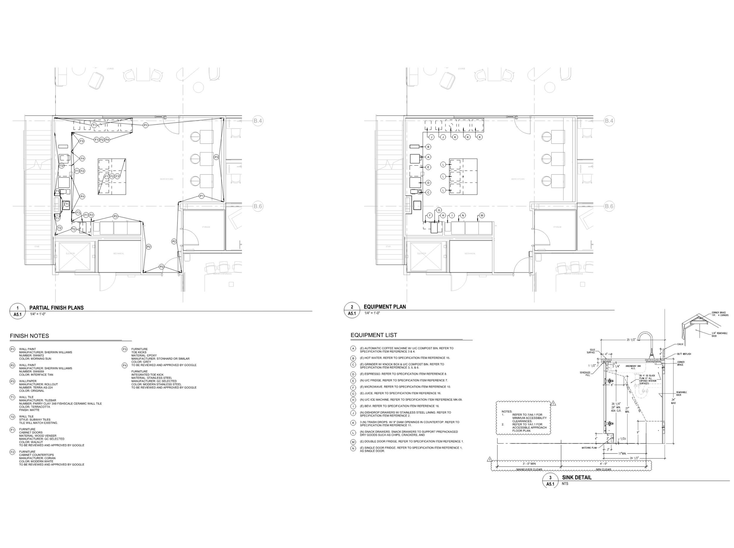
The client for this project requested a heavily-trafficked micro-kitchen refresh. The client had a schematic design that matched their branding based on other micro-kitchens at their facilities.

I was the sole Designer and Project Manager for this project. Some tasks included, but were not limited to, providing a proposal, coordinating with the client on the design, developing the drawings, coordinating with plumbing and electrical contractors, managing the design meetings, submitting and obtaining Health Department and City permits, and overseeing the construction administration for this project. An unexpected issue, unrelated to the micro-kitchen, was required by the Public Works Department that delayed the project. See below images for more information. all drawings shown were created by me.