Generator Installation

Year 2024-2025

Location Cupertino, CA

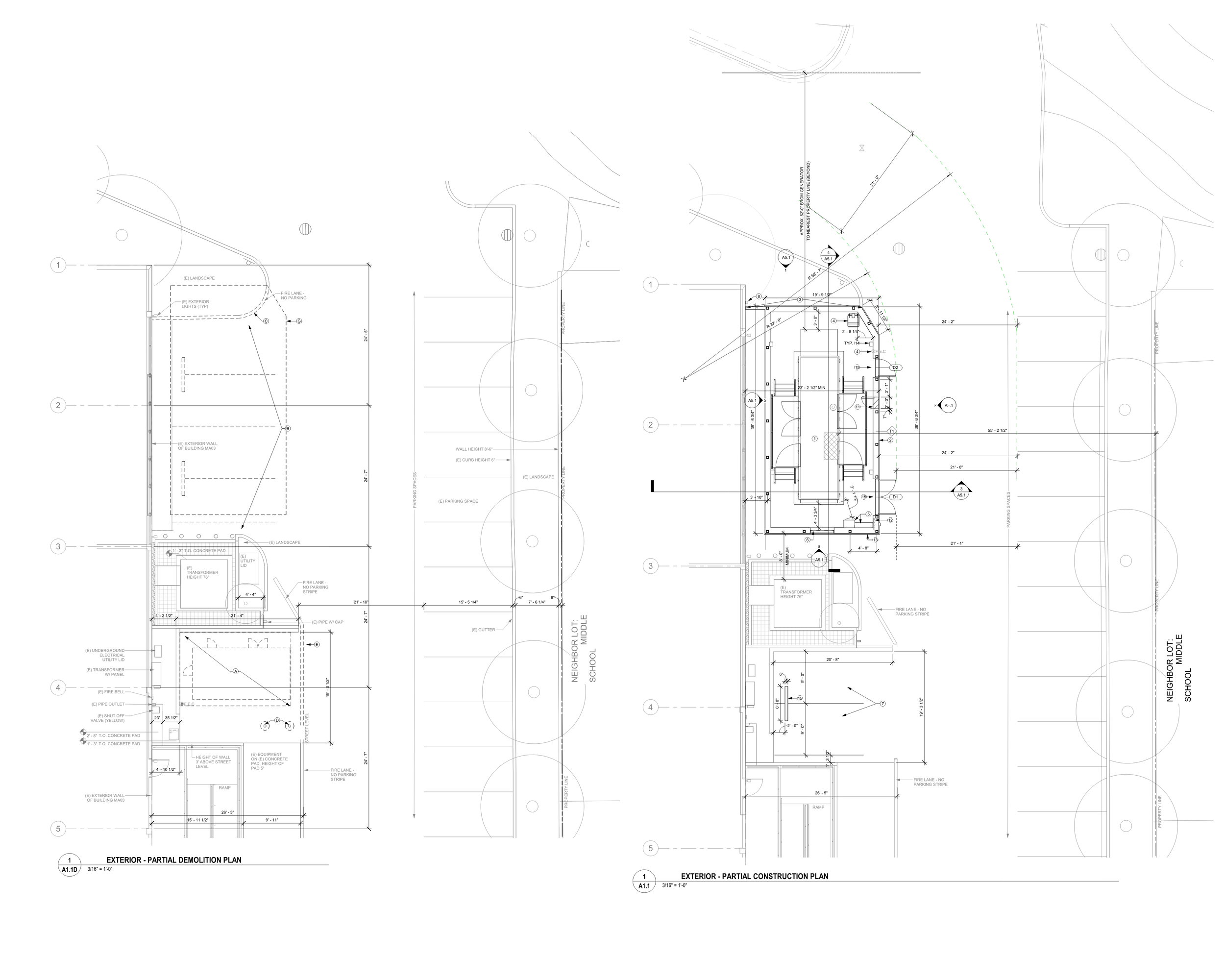
The client requested a replacement of an emergency generator that supports two client-owned facilities. Due to the size requirements, the new generator could not be located in the same position as the old generator. Many design iterations were investigated in the schematic design phase to determine a proper location. The location selected decreased the parking count for the adjacent building putting us under the code compliant threshold, but the placement was ideal compared to the other location options. Discussions with the City were required to receive a parking exception due to client-provided alternative transportation to the site and easements with the adjoining property.

I was the Project Manager for this project collaborating with a design team through the schematic design and into the design development phase of this project. I completed the drawings and design as the sole Designer from the end of the design development phase to Construction Administration. Some tasks I managed included managing meetings, collaborating with a sound engineer, coordinating with the client, City, and engineers, permitting the plans, and overseeing submittal reviews. The drawing to the right was a collaboration between myself and the design team. I also modeled the generator, site, and enclosure.