MSB Installation

Year 2024

Location Santa Clara, CA

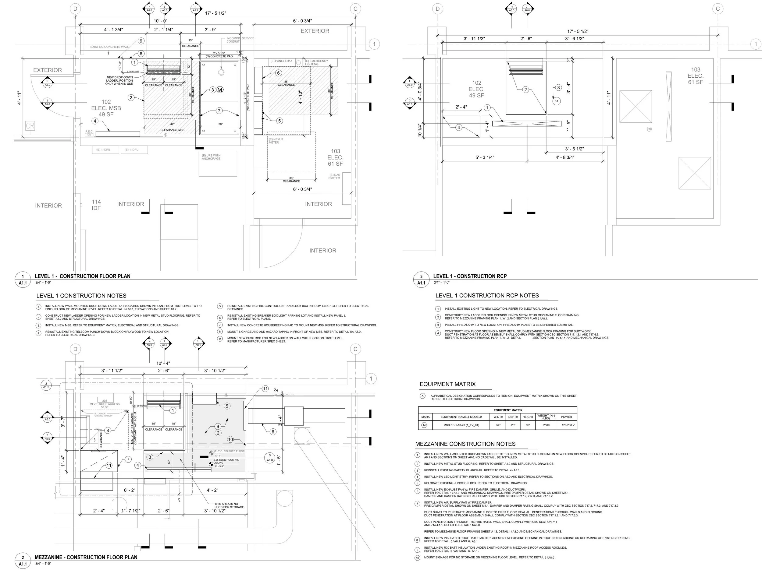
The client was required to upgrade the building’s systems from electrical meters to a Main Switch Board. Although this project is small, it came with many challenges. The initial design, that was approved and permitted by the City, was to place the MSB on the Mezzanine level due to room size restrictions and maintaining an interior ladder to the roof. However, the day before we shut down the building, Silicon Valley Power stated they were not given the drawings from the City to review the design during permitting and they do not approve the design due to safety risks of bringing their tools up a ladder. Within a week, we were able to re-design the space to meet SVP requirements and City requirements, with the approval of the client, and receive a permit.

I collaborated with a design team as the Project Manager on this project. The completed drawings were a combined effort of myself and the design team. I managed the meetings, provided design alternatives, coordinated with electrical and mechanical engineers, client, and the City and their correspondences to name some of my responsibilities.